お知らせ
2023/10/12
洗濯動線がスムーズ!家事に便利なプランを配信しました!
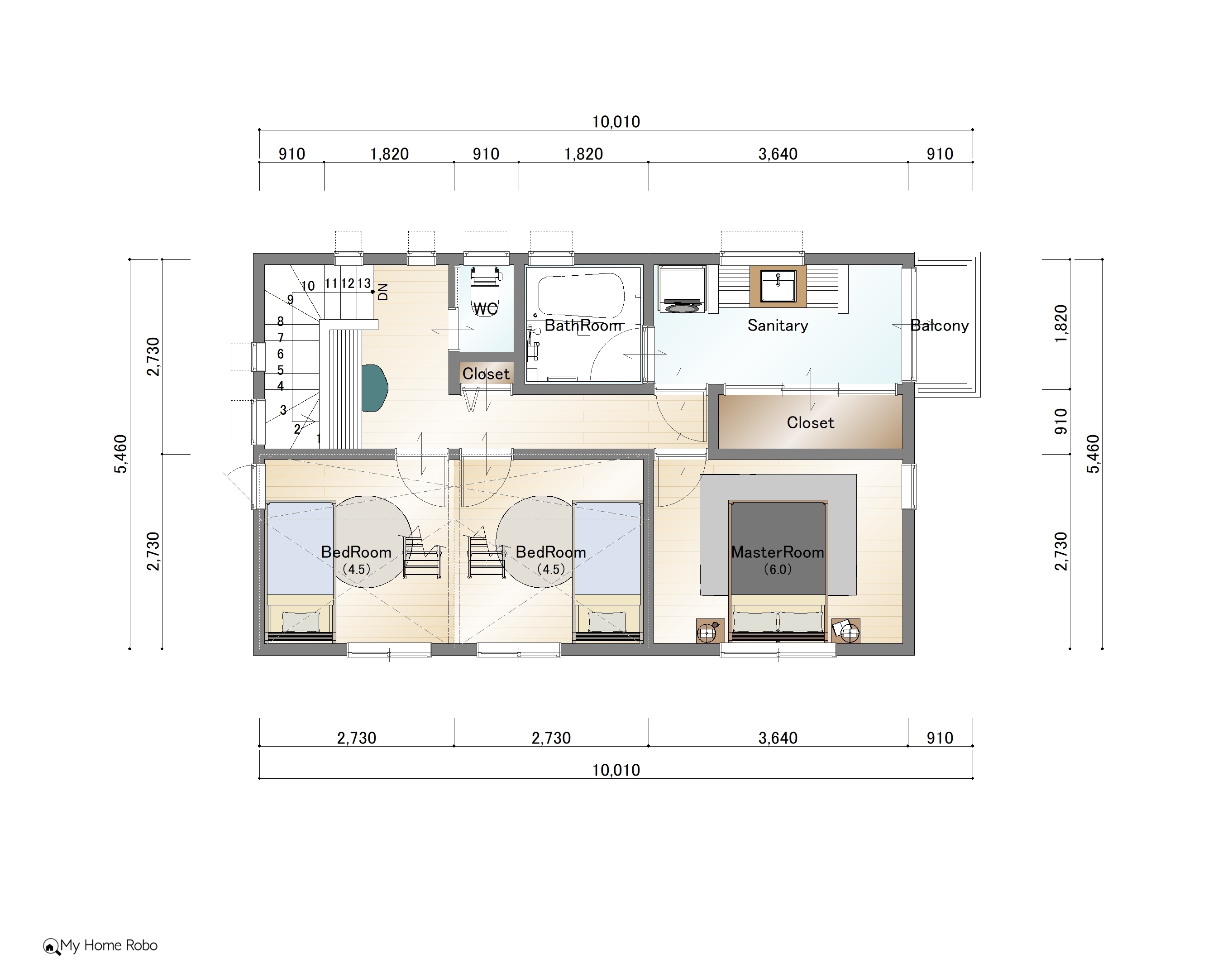
洗濯動線がスムーズなプラン
洗面脱衣室には洗濯機と広々とした洗面台、造り付けの大きなクローゼットがあります。掃き出し窓からはバルコニーに出られ、洗濯物を干すことも可能。洗う・干す・収納するが一か所で完結する、洗濯家事の利便性を考え抜いたプランです。
寝室が2階にあるので、各部屋に衣類を持っていきやすいのもポイント。洗濯物を持って1階と2階を往復しなくて済むのが嬉しいですね。
洗面台は1階玄関を入ってすぐの所にもあるので、衛生面でも安心できます。
ぜひ、アプリで体感ください!



※プランを見るにはアプリのダウンロードが必要です。
iOSの方はコチラ / Androidの方はコチラ
▼ まずは「My Room tour」のアプリをダウンロード!

